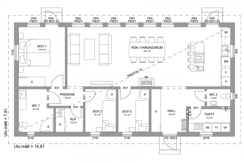
Hudikhus - Stil 113
Ett avskilt master bedroom och master bath är särskilt uppskattade inslag i den här husmodellen. Hela husserien Stil karaktäriseras av sina 2,70 m höga fönsterpartier och skjutdörrar som ger ett massivt ljusinsläpp och närkontakt med utemiljön, och pulpettaket som ger rymd i hela huset.
Teknisk fakta
- Hustyp:
- 1-plans hus
- Boyta:
- 101 kvm
- Byggarea:
- 113 kvm
- Takutformning:
- Pulpettak
- Rum:
- 4 st
- Sovrum:
- 3 st
- Badrum:
- 2 st
- Fasad:
-
Stående panel
- Vinkelhus:
- Nej
- Funkishus:
- Nej
- Fritidshus:
- Ja
Det fanns inga andra modeller