Hudikhus - Agö 35-60
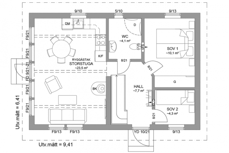
Yteffektivt fritidshus eller väl tilltagen gäststuga med två sovrum och badrum samt fler sovplatser på loftet. Detta lofthus har vardagsrum/kök i öppen planlösning med ryggåstak som ger rymd, och fint ljusinsläpp genom generösa fönsterpartier.
Teknisk fakta
- Hustyp:
- 1,5-plans hus
- Boyta:
- 52 kvm
- Byggarea:
- 60 kvm
- Takutformning:
- Sadeltak
- Rum:
- 4 st
- Sovrum:
- 3 st
- Badrum:
- 1 st
- Fasad:
-
Stående panel
- Vinkelhus:
- Nej
- Funkishus:
- Nej
- Fritidshus:
- Ja
Det fanns inga andra modeller