Dala Trähus - Domherren Alt.2


Förstora

Om husmodellen

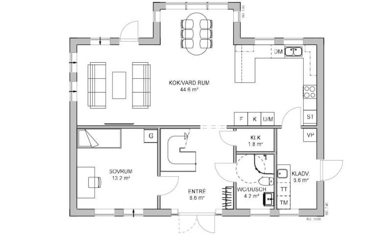
Domherren finns också med alternativa planlösningar för varje våningsplan. På det sättet kan du till exempel få fler sovrum på ovanvåningen eller nedervåningen, eller både och. I det här exemplet har vardagsrummet minskats för att ge plats åt ett extra sovrum. Klädvården och wc:n får därför dela på utrymmet till höger om entrén. På övervåningen har föräldrasviten omvandlats till två separata sovrum. Fönstersättningen har också anpassats för att harmoniera med den nya planlösningen.

Teknisk fakta

Andra hus ifrån Dala Trähus

Björken

Boyta: 172kvm
Rum: 6st

Sjöstjärnan

Boyta: 226kvm
Rum: 6st

Villa Koltrasten

Boyta: 140kvm
Rum: 6st

Tofsvipan

Boyta: 122kvm
Rum: 6st

Villa Solrosen

Boyta: 173kvm
Rum: 4st

Boken

Boyta: 133kvm
Rum: 4st

Hortensian

Boyta: 158kvm
Rum: 6st

Snäckan

Boyta: 161kvm
Rum: 7st

Sädesärlan

Boyta: 203kvm
Rum: 6st

Vitsippan

Boyta: 118kvm
Rum: 4st

Aklejan

Boyta: 139kvm
Rum: 5st

Villa Vallmon

Boyta: 146kvm
Rum: 5st

Aftonfalken

Boyta: 199kvm
Rum: 6st

Smörblomman

Boyta: 125kvm
Rum: 5st

Lönnen

Boyta: 139kvm
Rum: 6st

Blåmesen

Boyta: 164kvm
Rum: 5st

Blåklinten

Boyta: 119kvm
Rum: 4st

Krabban

Boyta: 173kvm
Rum: 6st

Duvan

Boyta: 164kvm
Rum: 7st

Sjöborren

Boyta: 201kvm
Rum: 7st

Kastanjen

Boyta: 147kvm
Rum: 6st

Ostronet

Boyta: 170kvm
Rum: 6st

Fiskmåsen

Boyta: 163kvm
Rum: 5st

Rönnen

Boyta: 174kvm
Rum: 6st

Linden

Boyta: 177kvm
Rum: 6st

Domherren Alt.2

Boyta: 165kvm
Rum: 7st

Poppeln

Boyta: 178kvm
Rum: 6st

Näktergalen

Boyta: 168kvm
Rum: 6st

Kaprifolen

Boyta: 136kvm
Rum: 5st

Violen

Boyta: 103kvm
Rum: 3st

Syrenen

Boyta: 158kvm
Rum: 6st

Snödroppen

Boyta: 143kvm
Rum: 5st

Tallen

Boyta: 158kvm
Rum: 6st

Strandsnäckan

Boyta: 145kvm
Rum: 6st

Duvhöken

Boyta: 168kvm
Rum: 6st

Pionen

Boyta: 158kvm
Rum: 6st

Domherren

Boyta: 165kvm
Rum: 5st

Kungsörnen

Boyta: 183kvm
Rum: 8st

Linnea

Boyta: 125kvm
Rum: 4st

Prästkragen

Boyta: 127kvm
Rum: 5st

Lärkfalken

Boyta: 197kvm
Rum: 6st

Granen

Boyta: 152kvm
Rum: 6st

Bofinken

Boyta: 133kvm
Rum: 5st

Gulsparven

Boyta: 137kvm
Rum: 6st