Borohus - nionde Fjärden


Förstora

Om husmodellen

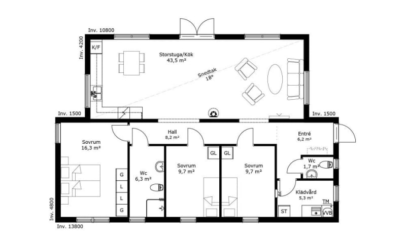
Nionde Fjärden är ett fritidshus med smart planlösning och med en intressant exteriör. Som tillägg kan man blanda liggande och stående panel för att skapa ett ännu mer livfullt yttre. Entrén till huset ligger på gaveln och gränsar till en liten WC samt separat tvättstuga. Precis innanför finns hallen. därifrån når man de tre sovrummen och ett större WC med dusch. Huset har en tydlig uppdelning med de tre sovrummen på en sida och kök och storstuga på den andra.

Storstugan har snedtak vilket ger rummet mer volym. Tillsammans med de stora fönstren får man ett ljust och luftigt rum. Den känslan förstärks ytterligare av pardörren ut till uteplatsen. Söker ni ett mindre alternativ ta en titt på första Lyckan.

Teknisk fakta

Andra hus ifrån Borohus

sjunde Fjärden

Boyta: 97kvm
Rum: 3st

Nova 5

Boyta: 158kvm
Rum: 5st

andra Lyckan

Boyta: 82kvm
Rum: 5st

Scandinavia 7

Boyta: 163kvm
Rum: 6st

sjätte Näset

Boyta: 79kvm
Rum: 4st

Karisma 10

Boyta: 120kvm
Rum: 4st

Karisma 23

Boyta: 145kvm
Rum: 5st

Karisma 12

Boyta: 125kvm
Rum: 5st

Scandinavia 10

Boyta: 169kvm
Rum: 6st

Prisma 3

Boyta: 160kvm
Rum: 5st

Karisma 5A

Boyta: 110kvm
Rum: 5st

tredje Lyckan

Boyta: 83kvm
Rum: 4st

Scandinavia 3

Boyta: 145kvm
Rum: 6st

Nova 7

Boyta: 158kvm
Rum: 6st

Karisma 1

Boyta: 104kvm
Rum: 4st

andra Fjärden

Boyta: 93kvm
Rum: 4st

femte Tunet

Boyta: 61kvm
Rum: 4st

Karisma 15

Boyta: 128kvm
Rum: 5st

Nova 1

Boyta: 147kvm
Rum: 6st

första Fjärden

Boyta: 93kvm
Rum: 4st

Scandinavia 9

Boyta: 165kvm
Rum: 6st

Karisma 19

Boyta: 134kvm
Rum: 5st

andra Näset

Boyta: 77kvm
Rum: 4st

Scandinavia 6

Boyta: 161kvm
Rum: 6st

sjätte Fjärden

Boyta: 97kvm
Rum: 4st

Karisma 13

Boyta: 126kvm
Rum: 5st

Nova 3

Boyta: 137kvm
Rum: 6st

sjunde Tunet

Boyta: 69kvm
Rum: 4st

Karisma 5B

Boyta: 90kvm
Rum: 4st

sjätte Tunet

Boyta: 68kvm
Rum: 4st

Scandinavia 13

Boyta: 180kvm
Rum: 6st

tredje Fjärden

Boyta: 96kvm
Rum: 4st

fjärde Fjärden

Boyta: 97kvm
Rum: 4st

Karisma 8

Boyta: 117kvm
Rum: 4st

Karisma 7

Boyta: 110kvm
Rum: 5st

Prisma 5

Boyta: 199kvm
Rum: 7st

fjärde Näset

Boyta: 79kvm
Rum: 5st

tredje Tunet

Boyta: 59kvm
Rum: 4st

andra Tunet

Boyta: 57kvm
Rum: 3st

tredje Näset

Boyta: 77kvm
Rum: 4st

Nova 2

Boyta: 149kvm
Rum: 6st

Scandinavia 1

Boyta: 132kvm
Rum: 5st

Nova 4

Boyta: 153kvm
Rum: 7st

Karisma 11

Boyta: 122kvm
Rum: 5st

Karisma 18

Boyta: 134kvm
Rum: 4st

Nova 8

Boyta: 189kvm
Rum: 8st

Karisma 14

Boyta: 127kvm
Rum: 5st

Karisma 4

Boyta: 104kvm
Rum: 4st

Nova 6

Boyta: 158kvm
Rum: 5st

Karisma 17

Boyta: 131kvm
Rum: 6st

Karisma 25

Boyta: 198kvm
Rum: 7st

Scandinavia 5

Boyta: 155kvm
Rum: 6st

Karisma 13P

Boyta: 126kvm
Rum: 5st

Karisma 22

Boyta: 144kvm
Rum: 5st

Karisma 26

Boyta: 134kvm
Rum: 5st

Karisma 5

Boyta: 107kvm
Rum: 5st

Scandinavia 2

Boyta: 145kvm
Rum: 6st

Scandinavia 12

Boyta: 174kvm
Rum: 6st

första Lyckan

Boyta: 81kvm
Rum: 4st

femte Lyckan

Boyta: 84kvm
Rum: 4st

Karisma 16

Boyta: 130kvm
Rum: 5st

Karisma 20

Boyta: 137kvm
Rum: 5st

Karisma 21

Boyta: 140kvm
Rum: 5st

sjunde Lyckan

Boyta: 86kvm
Rum: 4st

första Näset

Boyta: 71kvm
Rum: 4st

sjätte Lyckan

Boyta: 84kvm
Rum: 4st

nionde Fjärden

Boyta: 112kvm
Rum: 4st

Karisma 3

Boyta: 103kvm
Rum: 4st

Scandinavia 4

Boyta: 151kvm
Rum: 5st

Nova 9

Boyta: 211kvm
Rum: 7st

Prisma 4

Boyta: 195kvm
Rum: 6st

Prisma 1

Boyta: 161kvm
Rum: 5st

Scandinavia 11

Boyta: 170kvm
Rum: 6st

tionde Fjärden

Boyta: 90kvm
Rum: 4st

fjärde Lyckan

Boyta: 82kvm
Rum: 4st

Scandinavia 14

Boyta: 198kvm
Rum: 6st

första Klinten

Boyta: 65kvm
Rum: 3st

femte Näset

Boyta: 79kvm
Rum: 4st

andra Klinten

Boyta: 94kvm
Rum: 4st

fjärde Tunet

Boyta: 59kvm
Rum: 4st

tredje Klinten

Boyta: 114kvm
Rum: 5st

Karisma 9

Boyta: 117kvm
Rum: 4st

femte Fjärden

Boyta: 97kvm
Rum: 4st

Karisma 2

Boyta: 97kvm
Rum: 3st

Karisma 24

Boyta: 151kvm
Rum: 5st

åttonde Fjärden

Boyta: 104kvm
Rum: 4st

fjärde Klinten

Boyta: 130kvm
Rum: 6st

Karisma 6

Boyta: 108kvm
Rum: 4st

Femte Klinten

Boyta: 151kvm
Rum: 6st

Scandinavia 8

Boyta: 164kvm
Rum: 6st

första Tunet

Boyta: 47kvm
Rum: 3st

Prisma 2

Boyta: 159kvm
Rum: 5st