Movehome - MOVE #205
Klassisk villa med fin takkupa
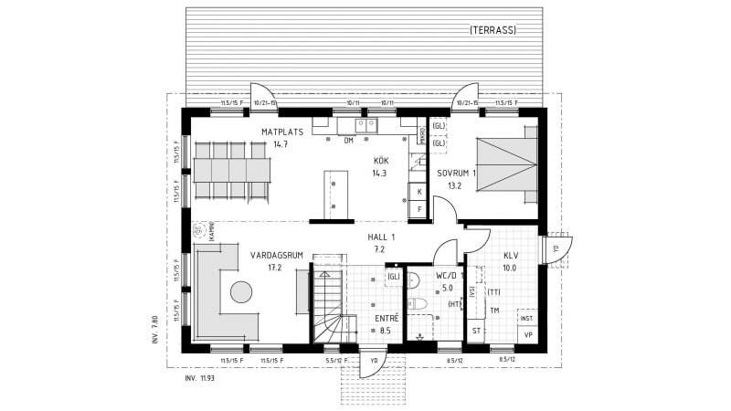
En klassiker där takkupan lyfter exteriören och ger invändig rymd. Ett sovrum på entréplanet gör det möjligt att inreda vindsplanet senare. Kök och vardagsrum i öppen lösning. En våning upp ligger ytterligare tre sovrum, badrum och flera klädkammare samlade runt ett allrum. Husets raka form gör att det passar såväl med långsida som gavel mot gatan. Med tegelrött tak och tillvalen putsad fasad och spröjs förs tankarna lätt till den skånska slätten.
Teknisk fakta
- Hustyp:
- 1,5-plans hus
- Boyta:
- 162 kvm
- Byggarea:
- 106 kvm
- Takutformning:
- Sadeltak
- Rum:
- 6 st
- Sovrum:
- 4 st
- Badrum:
- 2 st
- Fasad:
-
Liggande panel
- Vinkelhus:
- Nej
- Funkishus:
- Nej
- Fritidshus:
- Nej
Det fanns inga andra modeller